Přejít k obsahu webu
Architekt Petr Paleček
Architektonické a projekční práce
Menu
Aktuálně
Projekty
Rodinné domy
Rodinný dům Drásov
Rodinný dům Špičák
Rodinný dům Hamry II
Rodinný dům Hamry I
Vila Kodetka II
Vila Kodetka I
Vila Kesnerka
Rodinný dům Praha Řepy
Rodinný dům Všenory
Rodinný dům Borová Lada
Rodinný dům Sušice nad Otavou
Rodinný dům Libčice nad Vltavou
Rodinný dům Praha 9
Rodinný dvojdům Kvilda
Rodinný dům Vimperk
Rodinný dům Dolní Beřkovice
Dvojice rodinných domů (UKR)
Rezidence pro velvyslance Praha Břevnov
Rodinný dům Praha Klukovice
Bytové domy
REZIDENCE NA BRABENCI
Viladům Horoměřice
Viladům Kesnerka
Bytový dům Horoměřice
Viladům Závěrka
Bytový dům Brno Soběšice
Obytné soubory
Obytný soubor Bezděčín
Apartmány Vrchlabí
Rodinné domy Borová Lada
Obytný soubor Praha
Obytný soubor Soběšice – Dohnalova
Řadové rodinné domy Brno
Rodinné domy Rokycany
Obytný soubor Kolbenova
Rekreační objekty
Chata Viktorie
Chata v Posázaví
Interiér
Byt Praha Malvazinky
Letní byt (THA)
Byt Praha Podolí
Podkrovní byt Praha Smíchov
Koupelny RD Kvilda
Panelový byt Praha Břevnov
Podkrovní byty Praha Vršovice
Občanské stavby
Farma Těchonice
HS/ITC Kubova Huť
Apartmánový hotel Praha Vršovice
Urbanismus
Cyklistické zastavení Dolní Beřkovice
Letná
Soutěže
Porotherm dům 2015
Modulární bydlení pro seniory Praha Strašnice
Solar Decathlon project
Revitalizace panelových domů Praha Řepy
Ostatní
Wellness Písek
Letiště Praha Letňany
Zastřešení vstupu do bytového domu
Profil
Kontakt
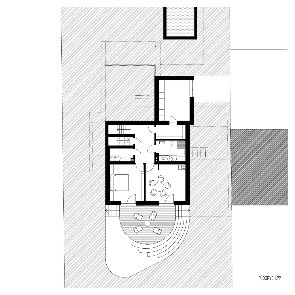
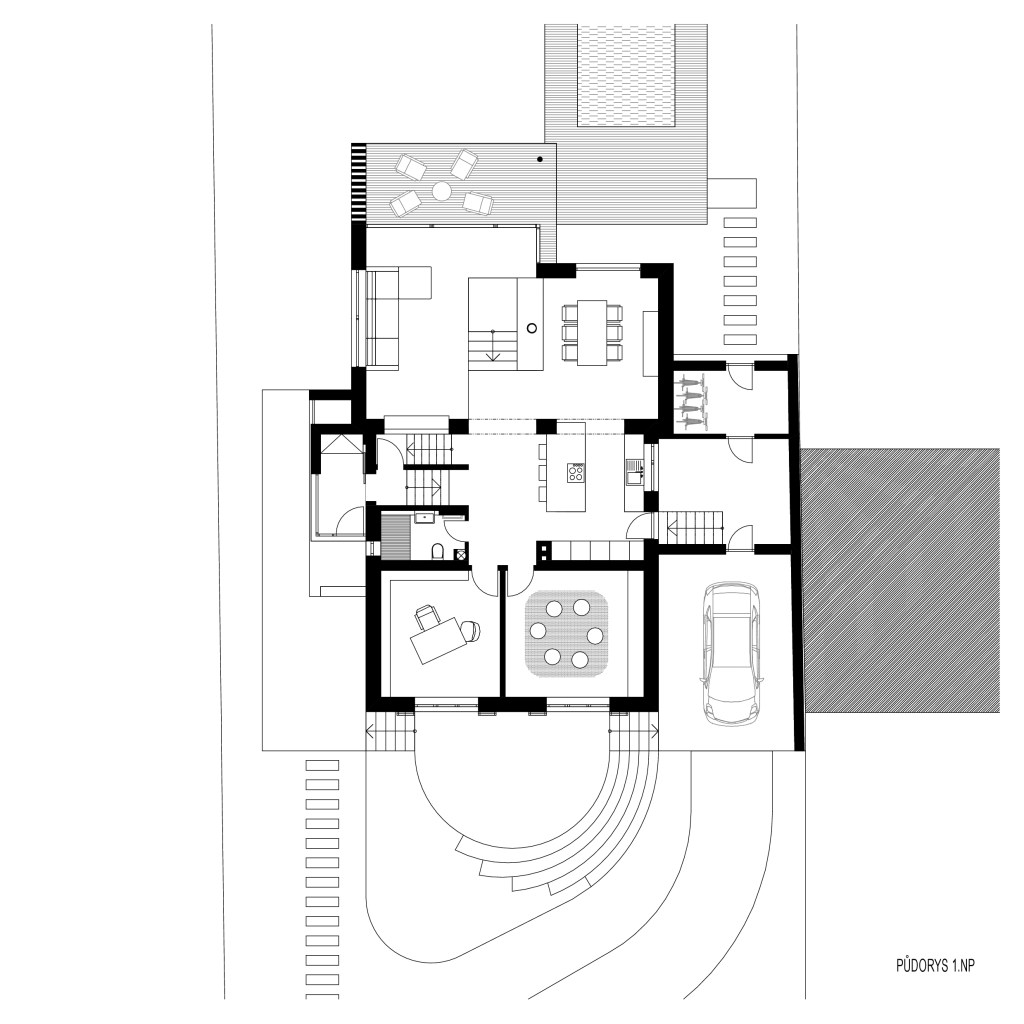
Rodinný dům Libčice nad Vltavou
Architekt Petr Paleček
Zaregistrovat se
Přihlásit se
Kopírovat zkrácený odkaz.
Nahlásit tento obsah
Spravovat odběry
Načítání komentářů...
Napište komentář...
E-mail
Jméno
Webová stránka